Appartement
Granville
1 178 000€
Description
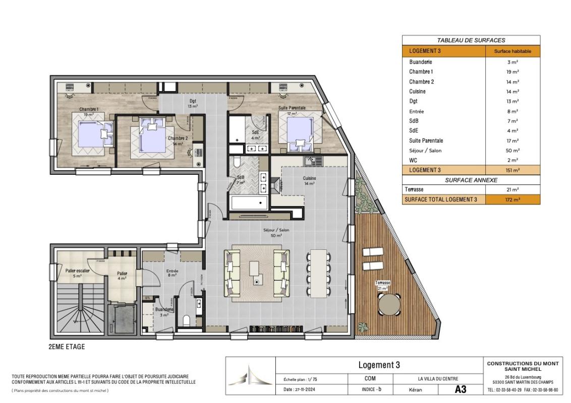
Granville hyper centre, orienté sud Ouest avec vue sur le Port de pêche, appartement de grand standing de 151m2 avec terrasse de 23m2.
Résumé
-
Type 2
-
Surface 151 m²
-
Prix 1 178 000€
